Appartamento
Vendita
Vendita Appartamento

Appartamento

Via Teatro Garibaldi, Palermo, Palermo

140.000 €
Ottimo Affare: 38% sotto la media
121
mq
5
Locali
2
Camere
1
Bagni

Recensisci questo Immobile

Devi essere registrato per lasciare una recensione.

Accedi

Nessuna recensione ancora. Sii il primo!

Descrizione

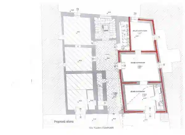
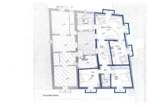
RIF. 0 1 2 6 1 - Palermo - nel cuore del centro storico - a pochi passi da Piazza Magione - Piazza Rivoluzione - da via Roma - esattamente in via Teatro Garibaldi - Casafacile Immobiliare propone in vendita un appartamento totalmente da ristrutturare luminosissimo sito al primo piano, con 7 balconi su tre esposizioni ( più chiostrina) - facente parte di un edificio antico anch'esso da ristrutturare integralmente, con progetto approvato ( residui 125.000,00 euro di contributi a fondo perduto per le parti comuni). L'appartamento è così composto : ingresso su ampia zona soggiorno / pranzo pari a due vani, con doppia esposizione e 3 balconi, cucina abitabile con balcone, ampia sala di disimpegno con balcone a petto, 2 camere da letto entrambe balconate, servizio. Superficie : 121 metriquadrati interni + 7 metriquadrati esterni. APE in corso di definizione, euro 140.000,00. Nella vendita è inclusa la proprietà di 1/3 indiviso di un piano terra di metriquadrati 85 totali. Alleghiamo alla galleria fotografica le piante di progetto di entrambi gli immobili . Possibilità di acquistare altri appartamenti nello stesso edificio.

tel. 091-324930 / 327-4449659

Caratteristiche

Piano 1
Ascensore No
Stato Da ristrutturare

Posizione

Zona: Kalsa (Centro Storico)

Referente

Casa Facile immobiliare

Storico

Pubblicato 14 Jan 2026
Aggiornato 18 Feb 2026
Sul mercato 36 giorni
ID Annuncio 108244011

Recensioni

Vedi tutte
L

Liliana Crescenzi

4.3

Ricordo ancora quando ho trovato quella casa perfetta in una zona tranquilla di Palermo, tutto grazie all'agenzia che mi ha seguita passo dopo passo. La loro efficienza nella gestione di tutta la buro...

C

Camilla Lagana

5.0

durante tutto il processo mi sono sentita molto rassicurata e supportata. la gestione della trattativa è stata fluida e senza stress, grazie alla loro disponibilità e flessibilità sugli orari che mi h...

E

Erica Elia

4.3

Durante il processo di acquisto della mia seconda casa al mare, mi sono sentita sempre supportata e tranquilla, grazie alla professionalità e all'attenzione dell'agenzia. Mi sono trovata molto bene co...