Vendita Villa Luxury

Villa

Via Madre Teresa di Calcutta, Tezze sul Brenta, Vicenza

Prezzo su richiesta
112
mq
5+
Locali
3
Camere

Recensisci questo Immobile

Devi essere registrato per lasciare una recensione.

Accedi

Nessuna recensione ancora. Sii il primo!

Descrizione

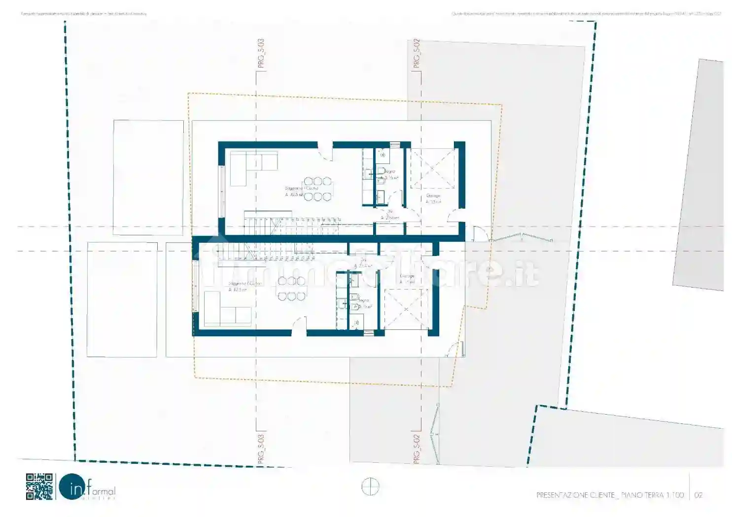
Il greenfield su cui sorgeranno le due bifamiliari oggetto di proposta è ubicato nel comune di Tezze sul Brenta (VI), via Madre Teresa: la zona, prettamente residenziale, consente un facile ed immediato accesso ai servizi primari, dal momento che, considerato un bacino di distanza di 5 km dal lotto, raccoglie scuole, alimentaristi e una farmacia..
Il terreno ha una superficie edificabile pari a 783 m².
I tempi di rilascio del PdC si attestano a 10-12 mesi dalla concessione del titolo edilizio.
L’ipotesi di progetto prevede la costruzione di due bifamiliari speculari con n. 2 piani fuori terra, come da ipotesi progettuali.
La nostra proposta si riferisce alla cessione delle bifamiliari.

Caratteristiche

Ascensore No
Stato Nuovo / In costruzione

Servizi e accessori

Esposizione esterna

Posizione

Referente

C.G. Immobiliare Srl

Storico

Pubblicato 15 Jan 2026
Aggiornato 24 Feb 2026
Sul mercato 40 giorni
ID Annuncio 117080921