Indietro
Vendita Palazzo - Edificio

Palazzo - Edificio

Via Falcone Borsellino, Nichelino, Torino

300.000 €
Ottimo Affare: 62% sotto la media
1100
mq
5+
Locali
3
Bagni

Recensisci questo Immobile

Devi essere registrato per lasciare una recensione.

Accedi

Nessuna recensione ancora. Sii il primo!

Descrizione

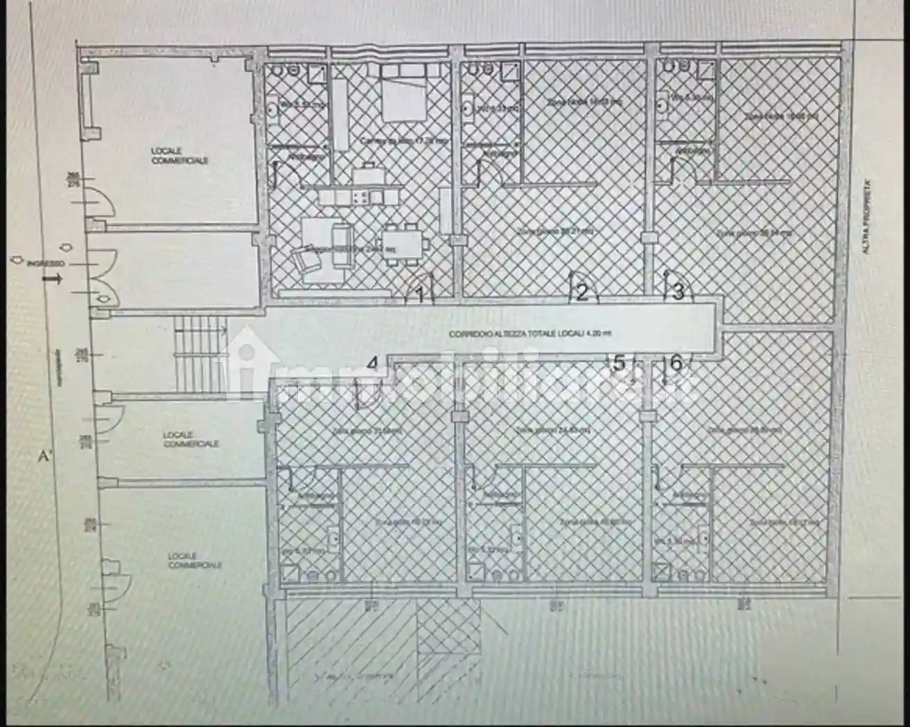
RIF. 376502 - Vendesi stabile di 1100 mq su più livelli.

Al piano terreno
misure 23 mt x 5,95 mt, possibilità di sviluppare o 4 attività commerciali o 4 unità abitative in stile loft.
Un locale adiacente, sempre al piano terreno, con porta autonoma, finestrato e sfruttabile x usi diversi come loft di grossa metratura o altre attività commerciali; sono già presenti predisposizione carichi/scarichi.

Piano rialzato
n. 6 appartamenti al piano rialzato interno, di circa 60 mq cad
con camera da letto, 16/18 mq
Sala di circa 24/28 mq
Anti bagno
Bagno di 5,5 mq
Già ACCATASTATI ( da ultimare)

Al primo piano
Possibilità di realizzazione di 1 oppure 2 appartamenti in area abitabile, di circa 110/115 mq, con 6 finestre.
Misure superficie 22,50mt x 5,95 mt .

Sotto tetto
Possibilità di trasformare in mansarde, con predisposizioni impianti carico/scarico, mq tot 324 circa, Misure 20/30 mt x 16mt circa .

Data la conformazione degli alloggi sono affittabili con semplicità :
Studenti, comodo al raggiungimento centro di Torino con mezzi pubblici in circa 20 minuti
Famiglie
Portatori di handicap,
Persone di terza età, autosufficienti ,
non distante vi è una RSA con la quale si possono stringere collaborazioni per assistenze esterne o affitti parenti.sfbc

Caratteristiche

Piano T
Ascensore No

Posizione

Referente

Rexer

Storico

Pubblicato 14 Jan 2026
Aggiornato 25 Feb 2026
Sul mercato 43 giorni
ID Annuncio 119922516

Recensioni

Vedi tutte
M

Margherita Musumeci

4.3

Ho scelto questa agenzia perché mi ha colpito subito la loro serietà e la profonda conoscenza delle normative immobiliari. Mi sono sentita seguita passo dopo passo, come se avessero davvero a cuore le...

G

Giada Ceccarelli

4.7

Mi sono trovata molto bene con questa agenzia: sono stata seguita con professionalità e attenzione. Hanno risposto sempre in modo tempestivo e sono stati molto affidabili, aiutandomi a trovare un appa...

G

Gianluca Fabbri

4.7

Dopo aver affrontato diverse esperienze nel settore immobiliare, posso dire che questa agenzia si distingue per la cura dei dettagli e la tempestività nelle risposte. Mi sono sentito seguito con atten...