Vendita Appartamento Luxury

Appartamento

Via Griselda, Saluzzo, Cuneo

Prezzo
106
mq
3
Locali
2
Camere
2
Bagni

Recensisci questo Immobile

Devi essere registrato per lasciare una recensione.

Accedi

Nessuna recensione ancora. Sii il primo!

Descrizione

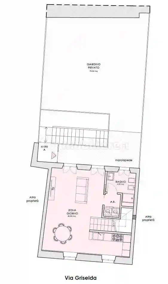
Trilocale con giardino esclusivo nel centro storico di Saluzzo

In Via Griselda, all’interno di un elegante stabile storico completamente riqualificato (solo 5 unità abitative), proponiamo in vendita un trilocale al piano terra, ideale per chi cerca comfort moderni senza rinunciare al fascino del centro storico.

L’alloggio, di circa 100 mq commerciali, è composto da:

Zona giorno living con angolo cottura e accesso diretto al giardino.

Due camere da letto.

Due bagni.

Cantina di pertinenza.

Splendido giardino privato di circa 75 mq, uno spazio esclusivo e raro nel cuore della città.

A parte, possibilità di acquistare posto auto oppure box auto, un plus di assoluto valore in questa zona.

Lo stabile, mantenendo la facciata storica, verrà completamente ricostruito nelle sue parti interne, garantendo classe energetica A.
Ogni unità sarà rifinita con finiture da capitolato, permettendo la massima personalizzazione.
Il riscaldamento sarà autonomo a pavimento con pompa di calore, senza spese condominiali.

Un’opportunità unica: vivere in un appartamento moderno ed efficiente, con giardino privato, nel cuore del centro storico di Saluzzo.

Caratteristiche

Ascensore No
Stato Nuovo / In costruzione
Riscaldamento Autonomo, a pavimento, alimentato a pompa di calore

Servizi e accessori

Armadio a muro Cancello elettrico Esposizione doppia Fibra ottica Infissi esterni in triplo vetro / legno Porta blindata VideoCitofono

Posizione

Referente

Studio Testa Agenzia Immobiliare di Roasio Simone & C. s.a.s.

Storico

Pubblicato 13 Jan 2026
Aggiornato 27 May 2026
Sul mercato 134 giorni
ID Annuncio 122617666

Recensioni

Vedi tutte
V

Valeria Crescenzi

5.0

Ho scelto questa agenzia perché avevo bisogno di vendere casa in fretta e cercavo un team affidabile e simpatico. Mi sono trovata subito bene, sono stata seguita con molta cortesia e sempre con grande...

F

Federica Curci

5.0

Ho scelto questa agenzia perché mi ha colpito la loro affidabilità e il modo in cui hanno ascoltato le mie esigenze. Sono stata seguita passo dopo passo con professionalità e attenzione, il che mi ha...

E

Emanuele Santarelli

4.7

Ricordo ancora il momento in cui ho deciso di acquistare il terreno a Saluzzo e ho trovato un team che mi ha seguito passo dopo passo con molta rapidità e onestà. Sono stato davvero colpito dalla loro...

I

Ivano Zucchi

4.3

Appena ho messo piede in agenzia, sono stato colpito dalla professionalità e dalla cortesia del team. Sono stato seguito con grande attenzione durante tutto il processo di vendita e ho trovato rispost...

J

Jessica Boni

4.0

Grazie mille per avermi seguita in questa vendita. Ho trovato un’ampia scelta di immobili e sono rimasta molto colpita dalla precisione con cui avete curato tutta la documentazione. Mi sono sentita as...