Non più attivo
Affitto Appartamento

Trilocale ottimo stato, Centro Storico, Pesaro

Pesaro, Pesaro Urbino

Prezzo /mese
65
mq
3
Locali
2
Camere
1
Bagni

Recensisci questo Immobile

Devi essere registrato per lasciare una recensione.

Accedi

Nessuna recensione ancora. Sii il primo!

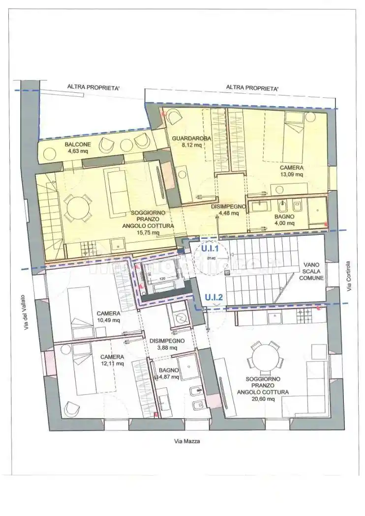
Descrizione

Abbiamo disponibile un appartamento in locazione, sito in zona centro ztl, completamente ristrutturato e parzialmente arredato.
L'appartamento è composto da ingresso, soggiorno con angolo cottura, bagno e 2 camere, oltre accessori.
Non sono presenti balconi.
Classe energetica B - EPgl/nren 83 kWh/mq annuo.
Il canone di affitto mensile è pari a € 1.100,00.
L'appartamento viene concesso esclusivamente con il rilascio di fideiussione bancaria contestualmente alla stipula del contratto.
Per informazioni telefonare ore ufficio allo 0721.21243.

Caratteristiche

Piano 2°, con ascensore
Ascensore Si
Stato Ottimo / Ristrutturato
Riscaldamento Assente

Servizi e accessori

Parzialmente arredato

Posizione

Zona: Centro Storico (Centro)

Referente

Bellagamba Real Estate

Storico

Pubblicato 29 Dec 2025
Disattivato 20 May 2026
Sul mercato 149 giorni
ID Annuncio 123777021

Recensioni

Vedi tutte
G

Gloria Gabrielli

5.0

Grazie di cuore per l'ottima assistenza! Sono stata molto soddisfatta del servizio, hanno dimostrato grande cortesia e capacità di ascolto in ogni fase. Mi hanno aiutata a trovare la seconda casa al m...

V

Veronica Grasso

4.3

Ho trovato l'appartamento perfetto per i miei figli grazie a un accompagnamento attento e professionale durante tutte le visite. L'agenzia si è mostrata seria e disponibile, aiutandomi a prendere deci...