Trilocale Passo Almeria 3, Principe, Genova
Vendita
Vendita Appartamento

Trilocale Passo Almeria 3, Principe, Genova

Passo Almeria, Genova, Genova

169.000 €
Ottimo Affare: 40% sotto la media
147
mq
3
Locali
2
Camere
2
Bagni

Recensisci questo Immobile

Devi essere registrato per lasciare una recensione.

Accedi

Nessuna recensione ancora. Sii il primo!

Descrizione

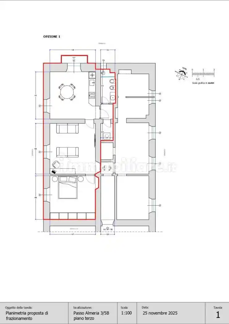
Castelletto / Principe, Vendesi grande appartamento con progetto per frazionamento in due appartamenti!
DA RISTRUTTURARE, viene consegnato allo stato attuale, a carico dell'acquirente tutti i lavori di frazionamento e ristrutturazione (impianti nuuovi, pareti interne da spostare, pavimenti, sanitari, ecc)
Possibilità di personalizzare i progetti prima dell'accatastamento (vedi planimetrie)
Possibilità di comprare un solo appartamento e poi frazionarlo dopo il rogito, così si può acquitare come prima casa.

ZONA CENTRALE, A 7 MINUTI A PIEDI DA VIA BALBI E DALLA STAZIONE DI GENOVA PRINCIPE.
Comodo anche per la metropolitana, quindi a tutto il centro di Genova e alla zona della Commenda.

APPARTAMENTO A: 2 camere da letto, soggiorno con angolo cottura, 1 bagno, 1 balcone, 1 ripostiglio
(possibilità anche progetto con una sola 1 camera da letto e zona giorno più ampia)

APPARTAMENTO B: 1 camera da letto, soggiorno con angolo cottura, 1 bagno, 1 ripostiglio

TERZO PIANO CON ASCENSORE
PAVIMENTI IN GRANIGLIA GENOVESE IN OTTIME CONDIZIONI, SOLO DA LUCIDARE
RISCALDAMENTO AUTONOMO

Spese condominiali pari a 75 euro ad appartamento (150 euro in totale per l'appartamento intero A+B)
Palazzo d'epoca con ingresso su giardino condominiale.

OTTIMO INVESTIMENTO PER AFFITTI BREVI, TRANSITORI O STUDENTI

Caratteristiche

Piano 3°, con ascensore
Ascensore Si
Stato Da ristrutturare
Riscaldamento Autonomo

Servizi e accessori

Cancello elettrico Fibra ottica Esposizione esterna Balcone Impianto tv centralizzato Giardino comune Infissi esterni in doppio vetro / metallo

Posizione

Zona: Principe (Principe, Carmine)

Referente

Irene Poggi

Storico

Pubblicato 30 Dec 2025
Aggiornato 15 Feb 2026
Sul mercato 51 giorni
ID Annuncio 125044383

Recensioni

Vedi tutte
V

Vincenzo Filippi

5.0

Dopo aver provato altre agenzie, questa ha davvero fatto la differenza: sono rimasto colpito dalla chiarezza delle spiegazioni e dall’ampia scelta di immobili disponibili. Mi sono trovato subito segui...

R

Renato Del Vecchio

4.7

Ho trovato l’appartamento perfetto per la mia famiglia in breve tempo grazie all’assistenza attenta e professionale dell’agenzia. Sono stato molto colpito dalla rapidità con cui hanno capito le mie es...

D

Dario Spada

4.7

Rispetto alle altre esperienze che ho avuto in passato, questa agenzia ha davvero fatto la differenza. Sono stato seguito con professionalità e cortesia, e alla fine ho trovato l'ufficio perfetto per...

D

Davide Fiori

5.0

Ricordo ancora quel pomeriggio che ho scoperto questa agenzia mentre cercavo un bilocale a Genova. Mi ha colpito subito la vasta scelta di immobili e la loro disponibilità, sempre pronti a seguirmi pa...