Vendita Villa Luxury

Villa

VIA XXV APRILE, San Giovanni in Persiceto, Bologna

Prezzo
127
mq
5
Locali
3
Camere
2
Bagni

Recensisci questo Immobile

Devi essere registrato per lasciare una recensione.

Accedi

Nessuna recensione ancora. Sii il primo!

Descrizione

SAN GIOVANNI IN PERSICETO


In nuovo ed esclusivo contesto residenziale, proponiamo in vendita villa indipendente di nuova costruzione in classe energetica A4, edificata secondo le più recenti tecnologie impiantistiche e costruttive, che assicurano risparmio energetico e comfort abitativo ottimale.



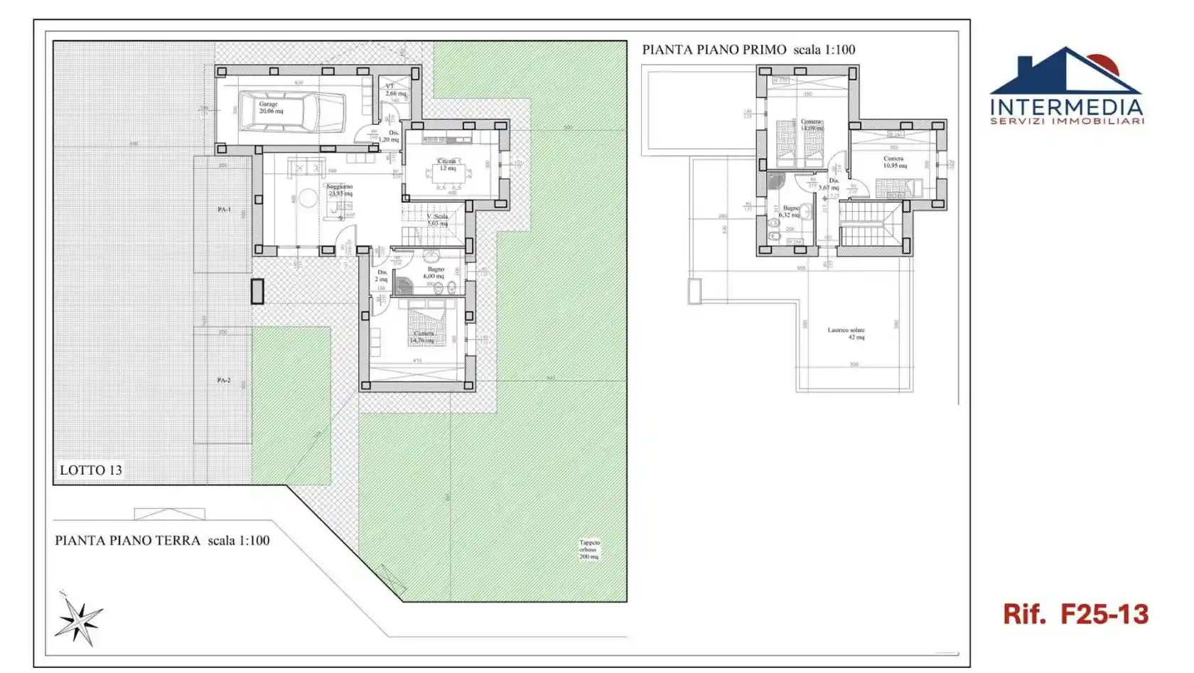
COMPOSIZIONE:

L'immobile si compone al PIANO TERRA da: ingresso su ampio soggiorno, cucina abitabile, disimpegno bagno, camera matrimoniale, accesso diretto ad un ampio giardino privato di oltre 200 mq e ad un comodo e spazioso porticato esterno. Sempre al piano terra, troviamo: disimpegno, autorimessa e cantina collegate internamente al soggiorno.

Proseguendo mediante una comoda scala interna si raggiunge la zona notte situata al PIANO PRIMO composto da: disimpegno, due camere, bagno e lastrico solare di oltre 40 mq.



CARATTERISTICHE E DOTAZIONI:

- riscaldamento autonomo a pompa di calore a pavimento

- edificio gas free

- impianto fotovoltaico privato

- infissi in PVC con triplo vetro a taglio termico

- porta blindata

- bassissimi costi di gestione



L'immobile è attualmente allo stato grezzo e offre l'opportunità di personalizzare ogni dettaglio delle finiture interne. Un ricco capitolato di pregio e di altissima qualità è a vostra disposizione per ultimare la proprietà, permettendovi di plasmare gli spazi secondo il vostro gusto esclusivo e le vostre specifiche esigenze abitative.

La villa si trova in un esclusivo quartiere di recente realizzazione e gode di una posizione strategica, comoda a tutti i principali servizi e prossima al centro.



Prenota la tua visita!
333 666 1861 (Maria)


Gestione diretta della vendita del tuo immobile.


INTERMEDIA SERVIZI IMMOBILIARI Classe Energetica: A4

Caratteristiche

Ascensore No
Stato Nuovo / In costruzione
Riscaldamento Autonomo, a pavimento, alimentato a pompa di calore

Servizi e accessori

Cancello elettrico Esposizione esterna Fibra ottica Impianto tv singolo Infissi esterni in triplo vetro / PVC Porta blindata VideoCitofono

Posizione

Referente

Intermedia Servizi Immobiliari

Storico

Pubblicato 12 Jan 2026
Disattivato 03 Apr 2026
Sul mercato 139 giorni
ID Annuncio 125074781

Recensioni

Vedi tutte
G

Gloria Cataldo

5.0

Ho appena venduto un locale commerciale e sono molto soddisfatta del risultato. Sono stata seguita con attenzione e ho apprezzato particolarmente la capacità dell’agenzia di ascoltare le mie esigenze,...

A

Arianna Scaglione

4.7

Ricordo quando ho trovato il magazzino perfetto per la mia azienda in pochi giorni. Mi sono sentita subito seguita con professionalità e precisione, soprattutto nella gestione delle normative e dei do...

M

Margherita Laconi

4.7

Se state cercando un'agenzia seria e affidabile, il mio consiglio è di rivolgervi a questa. Mi sono trovata molto bene, sono stata seguita passo dopo passo con professionalità e gentilezza, riuscendo...

D

Daniela Filippini

4.7

Le mie precedenti esperienze con agenzie immobiliari erano state spesso deludenti, ma questa volta è stata tutta un'altra storia. Mi sono sentita davvero ascoltata e capita durante tutto il percorso,...

R

Roberta Calò

4.3

Ricordo ancora il momento in cui ho trovato l’appartamento perfetto per la mia famiglia in crescita, grazie alla loro professionalità. Sono stata colpita dalla puntualità negli appuntamenti e dalla ca...