Vendita Villa

Villa

Villaggio Dei Gigli, Maracalagonis, Cagliari

Prezzo
Buon Prezzo: 18% sotto la media
343
mq
4
Locali
3
Camere
2
Bagni

Recensisci questo Immobile

Devi essere registrato per lasciare una recensione.

Accedi

Nessuna recensione ancora. Sii il primo!

Descrizione

Vivere la Natura: Villa Indipendente Ristrutturata (3 Camere) con 2000 mq di Giardino - Villaggio Dei Gigli
L'Oasi di Tranquillità a Pochi Minuti da Cagliari
Eurospa Immobiliare presenta in esclusiva un'affascinante soluzione indipendente immersa nel verde, situata nel tranquillo Villaggio Dei Gigli, Comune di Maracalagonis, in posizione strategica vicino alla SS 125.
Questa proprietà è la scelta ideale per chi cerca una vita riservata, lontano dal rumore cittadino, senza rinunciare alla comodità dei collegamenti.
✨ Caratteristiche Principali e Stile di Vita
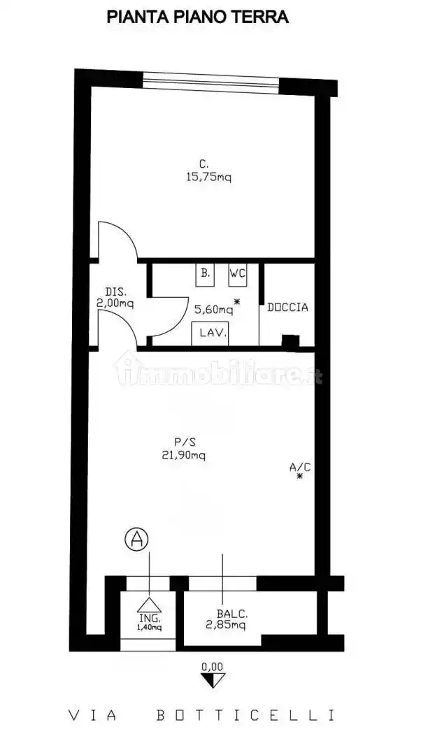
L'immobile è stato oggetto di ristrutturazione, offrendo ambienti moderni e accoglienti. La distribuzione interna è stata pensata per il massimo comfort abitativo:
Zona Giorno Luminosa: Ampia sala perfetta per accogliere amici e familiari, affiancata da una cucina separata e funzionale.
Zona Notte Funzionale: Tre comode camere da letto, di cui una include un bagno padronale privato, garantendo la massima privacy. È presente un ulteriore bagno ad uso comune.
Spazio Esterno: Un accogliente loggiato, ideale per colazioni e cene all'aperto, si affaccia direttamente sul giardino.
� Il Giardino: Un Sogno di 2000 mq
Il vero valore aggiunto è l'immenso giardino di circa 2000 mq, un'area verde che aspetta solo di essere vissuta!
Perfetto per:
Bambini e Animali Domestici: Ampio sfogo per il gioco e l'esplorazione, immersi nella natura in totale sicurezza.
Hobby: Ideale per chi ama il giardinaggio, coltivare un orto o installare una piscina fuori terra.
�️ Dettagli Aggiuntivi
Posizione: Villaggio Dei Gigli (Maracalagonis), strategica per la vicinanza alla SS 125.
Privacy Garantita: Massima silenzio e tranquillità.
Spazi Tecnici: Presenza di una cantina sottostante il loggiato, utilizzabile come vano tecnico o deposito aggiuntivo.
ape e
eurospa immobiliare
0702040732

Caratteristiche

Piano 2 piani: Piano terra, Piano rialzato
Stato Ottimo / Ristrutturato
Riscaldamento Assente
Garage 4 in parcheggio/garage comune

Servizi e accessori

Armadio a muro Impianto tv con parabola satellitare Cantina Giardino privato Infissi esterni in doppio vetro / pvc

Posizione

Storico

Pubblicato 01 Jan 2026
Aggiornato 30 May 2026
Sul mercato 148 giorni
ID Annuncio 125243849

Recensioni

Vedi tutte
P

Patrizia Righi

4.7

Ricordo ancora il momento in cui ho trovato l'agente perfetta che mi ha aiutato a vendere la casa dopo il divorzio. Sono stata davvero colpita dalla trasparenza e dalla pazienza con cui mi hanno segui...

S

Sara Carboni

4.7

Se stai cercando un'agenzia immobiliare a Sassari, ti consiglio di sceglierne una che sappia ascoltare davvero le tue esigenze e ti segua passo passo. Io sono stata molto soddisfatta perché, grazie al...

C

Caterina Barone

4.7

Ho trovato l'agenzia davvero affidabile e professionale, mi sono sentita subito seguita con molta attenzione. Ti aiutano a capire bene ogni dettaglio e ti spiegano tutto con chiarezza, il che è fondam...

C

Carlotta Resta

4.0

Grazie di cuore per avermi seguita con tanta cortesia e attenzione ai dettagli. Sono stata davvero soddisfatta del servizio offerto, che mi ha aiutata a trovare l’appartamento perfetto per la mia fami...