Appartamento via Guglielmo Oberdan, Centro Storico, Bologna
Vendita
Vendita Appartamento Nuovo Luxury

Appartamento via Guglielmo Oberdan, Centro Storico, Bologna

Via Guglielmo Oberdan, Bologna, Bologna

980.000 €
200
mq
5+
Locali
4
Camere
3+
Bagni

Recensisci questo Immobile

Devi essere registrato per lasciare una recensione.

Accedi

Nessuna recensione ancora. Sii il primo!

Descrizione

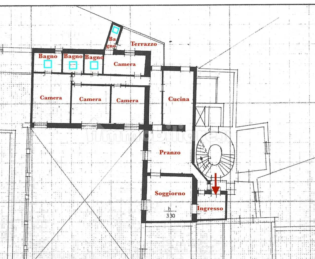
VIA OBERDAN - Elegante e Prestigioso Palazzo con Ascensore; Piano Alto di Ampia Metratura, Luminoso e Silenzioso: Ingresso Arredabile, Soggiorno, Sala da Pranzo, Cucina Abitabile, Terrazza. 4 Camere, 3 Bagni, Ripostiglio, Ampia Cantina. € 980.000

Caratteristiche

Piano 3°, con ascensore
Ascensore Si
Stato Ottimo / Ristrutturato
Riscaldamento Assente

Servizi e accessori

Cancello elettrico Fibra ottica Videocitofono Impianto di allarme Porta blindata Esposizione esterna Armadio a muro Balcone Terrazzo Impianto tv con parabola satellitare Parzialmente arredato Cantina Giardino comune Infissi esterni in doppio vetro / legno

Posizione

Zona: Centro Storico (Centro)

Storico

Pubblicato 24 Dec 2025
Aggiornato 15 Feb 2026
Sul mercato 58 giorni
ID Annuncio 125511845

Recensioni

Vedi tutte
G

Guido Manna

4.3

Stavo cercando un magazzino affidabile e in buona posizione per la mia azienda, e fortunatamente ho trovato questa agenzia. Mi hanno seguito passo dopo passo, aiutandomi ad affrontare tutte le pratich...

G

Greta Piazza

4.3

Rispetto alle esperienze precedenti, questa agenzia si è rivelata più chiara e professionale. Mi sono trovata molto bene, hanno seguito passo dopo passo tutte le pratiche e sono state sempre disponibi...