Vendita Appartamento

Appartamento

Via Toscana , 209, Bologna, Bologna

Prezzo
79
mq
3
Locali
2
Camere
2
Bagni

Recensisci questo Immobile

Devi essere registrato per lasciare una recensione.

Accedi

Nessuna recensione ancora. Sii il primo!

Descrizione

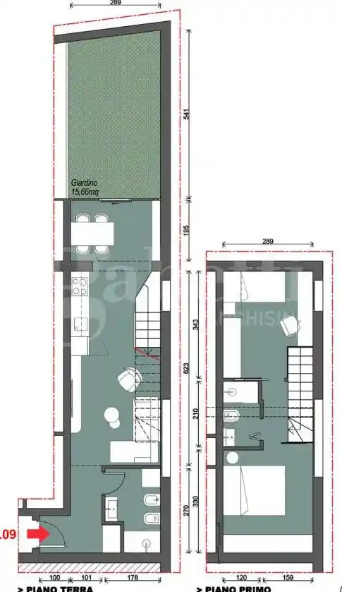
BOLOGNA VIA TOSCANA
In stabile in completa fase di ristrutturazione proponiamo in vendita appartamento trilocale-duplex.
L'appartamento si sviluppa su due livelli ed è composto da ingresso sull'ampia sala con cucina a vista , con accesso al giardino e il primo bagno.
Tramite una scala interna si accede alla zona notte composta da due camere da letto e il secondo bagno.
Possibilità di personalizzare le finiture.
Possibilità di acquisto di posti auto e di abbinare altre unità abitative per ampliare gli spazi.
Detrazioni fiscali.
Consegna Dicembre 2026.

Caratteristiche

Piano T
Ascensore No
Stato Nuovo / In costruzione
Riscaldamento Autonomo, alimentazione elettrica

Servizi e accessori

Esposizione esterna Fibra ottica Infissi esterni in triplo vetro / PVC Porta blindata VideoCitofono

Posizione

Zona: San Ruffillo (Toscana, Savena)

Referente

Gabetti Franchising Bologna Costa Saragozza

Storico

Pubblicato 12 Jan 2026
Disattivato 01 May 2026
Sul mercato 139 giorni
ID Annuncio 125679439

Recensioni

Vedi tutte
A

Alice Leto

4.7

Finalmente ho trovato la casa dei miei sogni e sono super felice! L'agenzia è stata molto puntuale agli appuntamenti e mi ha accompagnata con grande pazienza durante tutte le visite, facendomi sentire...

G

Grazia Mereu

4.3

Quando sono arrivata a visitare gli appartamenti, sono stata subito colpita dalla professionalità e disponibilità delle persone che mi hanno seguito. Sono stata aiutata passo dopo passo, anche con le...