Vendita Appartamento

Appartamento

Arcene, Bergamo

280.000 €
83
mq
3
Locali
2
Camere
2
Bagni

Recensisci questo Immobile

Devi essere registrato per lasciare una recensione.

Accedi

Nessuna recensione ancora. Sii il primo!

Descrizione

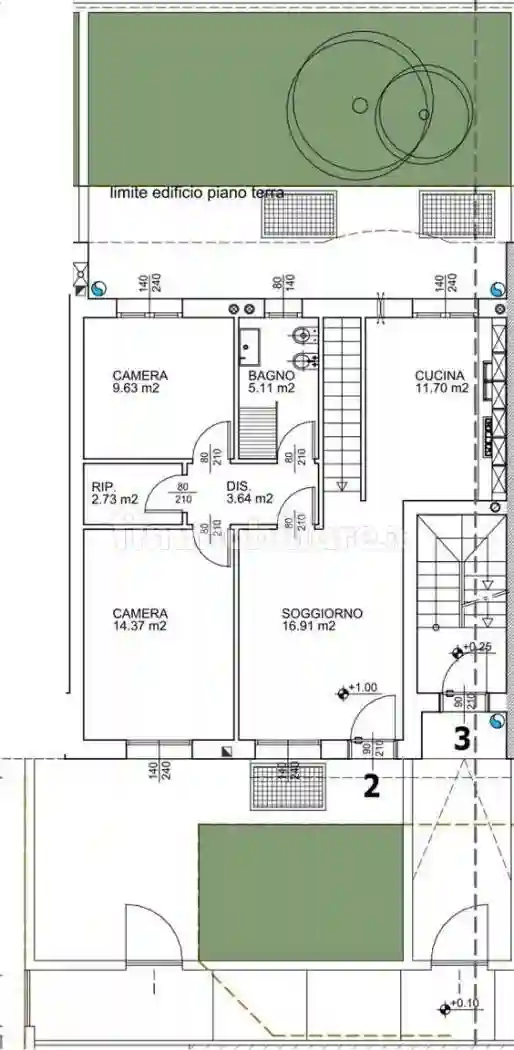
In nuovo riservato contesto residenziale di sole 3 unità immobiliari (2 appartamenti + 1 villa di testa), si propone trilocale da circa 83mq disposto su unico livello al piano terra con ingresso pedonale indipendente, giardino esclusivo di quasi 100mq fronte/retro, interrato raggiungibile tramite scala interna alla casa con grande box doppio in larghezza da 32mq, cantina da 14mq e intercapedine da circa 5mq per un miglior isolamento.

Ingresso pedonale indipendente dal giardino di proprietà, zona giorno da quasi 30mq calpestabili con soggiorno e cucina abitabile anche separabile, disimpegno, camera matrimoniale, seconda camera, bagno, ulteriore vano ad uso ripostiglio o secondo bagno/lavanderia.
Scala interna all'appartamento porta all'interrato sopra descritto, all'esterno giardino da circa 50mq e 41mq di area piastrellata uso camminamenti/ porticato.

L'appartamento sarà edificato con elevati parametri costruttivi per raggiungere la certificazione A3 o superiore (valore di progetto) prevedendo innovativa costruzione con il sistema ECOSISM che prevede struttura in acciaio zincato a formare i casseri al cui interno vengono inseriti pannelli isolanti (come EPS, lana di roccia, etc.) che garantiscono un doppio cappotto (interno ed esterno alla parete portante) e successivamente vengono riempiti con calcestruzzo per creare una parete portante monolitica che garantisce ottime prestazioni sismiche, termiche ed acustiche superiori ai sistemi di costruzione tradizionali. I tavolati interni saranno in cartongesso doppia lastra 1,2cm+1,2cm con interposta lana di roccia per isolamento termoacustico. Serramenti basso emissivo in PVC con tapparelle in alluminio motorizzate, impianto di riscaldamento a pavimento con pompa di calore e predisposizione split idronici per il raffrescamento funzionante sempre con la medesima pompa di calore così anche da ridurre i costi di manutenzione, impianto di VMC (ventilazione meccanica controllata), impianto fotovoltaico minimo 3,5kw, predisposizione antifurto perimetrale sui serramenti e volumetrico interno, portone sezionale box coibentato e motorizzato, etc.

Prezzo 280.000€ (circa 124mq commerciali parzializzati). Allacciamenti ed accatastamenti compresi nel prezzo!

Caratteristiche

Piano T
Ascensore No
Stato Nuovo / In costruzione
Riscaldamento Autonomo, a pavimento, alimentato a fotovoltaico

Servizi e accessori

Impianto di allarme Infissi esterni in doppio vetro / PVC Porta blindata VideoCitofono

Posizione

Referente

Consulenze Casa di Roberto Radici

Storico

Pubblicato 23 Jan 2026
Aggiornato 25 Feb 2026
Sul mercato 32 giorni
ID Annuncio 126149061

Recensioni

Vedi tutte
L

Luciano Ferretti

5.0

Apprezzato molto la puntualità e la precisione con cui hanno gestito tutta la documentazione, rendendo il processo di affitto semplice e senza stress. Sono stato molto aiutato anche dopo la firma, con...