Vendita Appartamento

Appartamento

Via Monti Lepini, Milano, Milano

Prezzo
53
mq
2
Locali
1
Camere
1
Bagni

Recensisci questo Immobile

Devi essere registrato per lasciare una recensione.

Accedi

Nessuna recensione ancora. Sii il primo!

Descrizione

Proponiamo in vendita, in zona Porta Vittoria, in un edificio che è stato oggetto di completa riqualificazione, uno degli ultimi appartamenti rimasti ancora disponibili.

L’intera realizzazione, dal carattere moderno e contemporaneo, è distribuita su due piani ed ha previsto, in totale, 8 appartamenti di diverse metrature e tutti con ingresso indipendente.

Ogni unità abitativa viene consegnata completamente ultimata con materiali di alta qualità e completata con un arredo di alto standard qualitativo Made in Italy, comprensivi anche di tutti gli elettrodomestici.

Ciascuna delle unità è stata pensata per avere uno spazio esterno che potrà essere un patio, un terrazzo o un balcone, mentre per i quattro appartamenti posti al piano terreno ci sarà anche un posto auto di proprietà nel cortile interno.

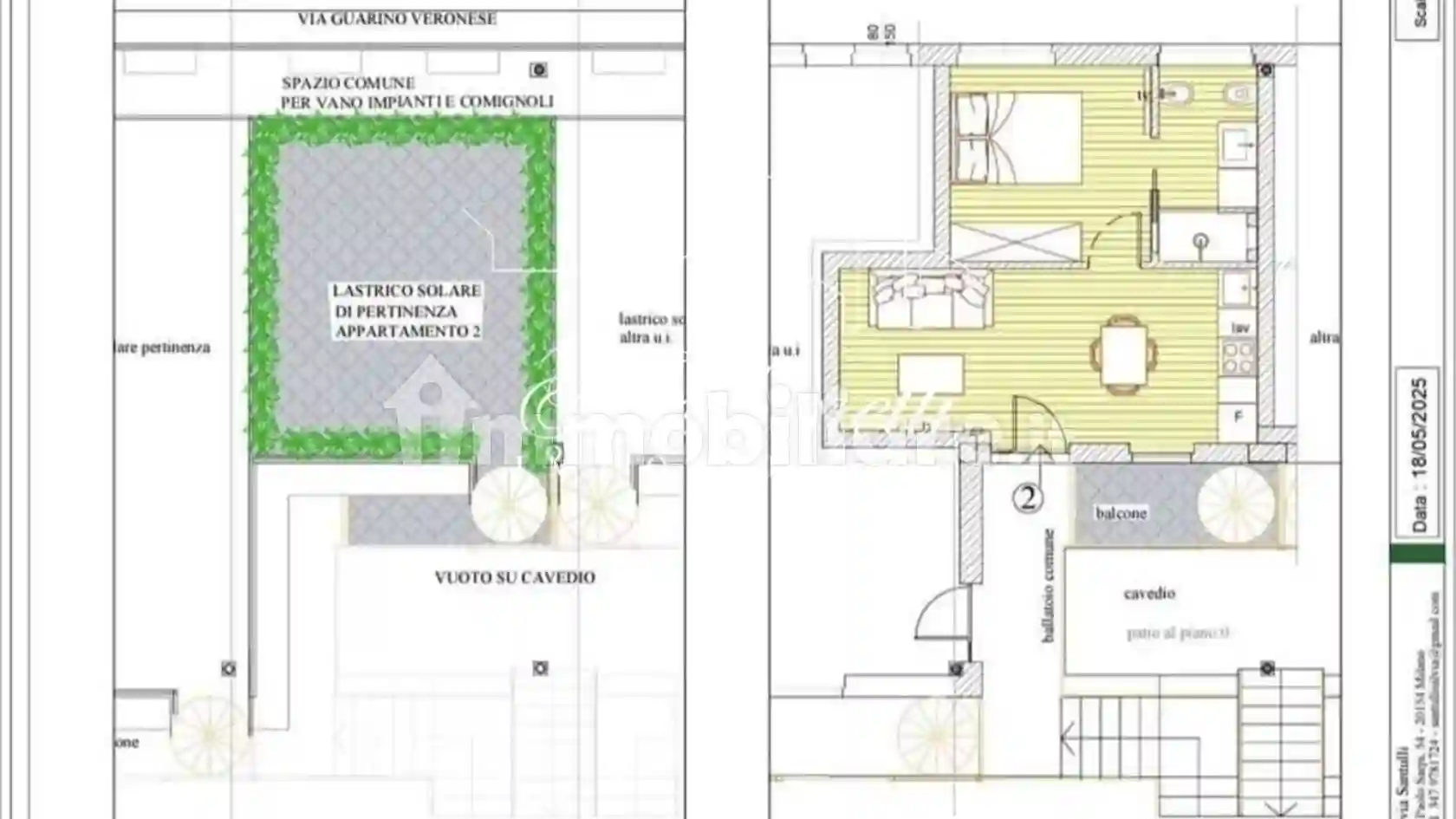
L’immobile in oggetto è un bilocale di 53 mq situato al piano primo e trova il suo completamento con un confortevole balcone ed un comodissimo lastrico solare di 24 mq esposto su tutti e quattro i lati. L’appartamento è composto da un ampio spazio living con soggiorno e angolo cottura, una luminosa camera da letto con armadiatura e un bagno con finestra e box doccia.

La consegna è prossima, è infatti prevista per fine marzo 2026.

L’edificio è stato realizzato con tecnologie di costruzione avanzate che garantiscono un ottimale comfort termico e acustico e le migliori tecnologie di riscaldamento e raffrescamento verso un’elevata sostenibilità energetica: tra le principali dotazioni ci sono, infatti, infissi interni a scomparsa, pavimentazione in gres porcellanato, tapparelle coibentate ed elettriche, serramenti di ultima generazione in PVC in doppio vetro.

La classe energetica è in A2 IPE 3,51 kWh/m² anno.

L’area della residenza è interessata da un importante progetto di riqualificazione urbana che include lo sviluppo del progetto ARIA, nuovi servizi di quartiere, il futuro campus IED e soprattutto la nuova linea metropolitana M6, attualmente in fase di progettazione. Il tracciato previsto dalla M6 collegherà l’area di Piazzale Cuoco proseguendo verso Viale Molise con l’interscambio al passante ferroviario di Porta Vittoria e così via con l’interscambio con la M4 di piazzale Susa, la M2 di Piola, e la M1 e M2 di Loreto.

Attualmente la posizione risulta essere già strategica grazie alla vicinanza con il Passante di Porta Vittoria, i collegamenti con il tram 16, le varie linee autobus e le fermate (Lodi TIBB e Brenta) che garantiscono collegamenti rapidi con tutto il centro città.

Gli appartamenti, pur essendo una nuova costruzione, non sono soggetti ad IVA; le spese accessorie di acquisto verranno quindi calcolate sulla rendita catastale, con un considerevole vantaggio economico per chi acquista.

LE ULTIME DISPONIBILITA’ RIMASTE SONO:

PRIMO PIANO:
- App. n.1° Mq 63 euro 350.000 Abitazione + Balcone + Terrazzo
- App. n.2° Mq 53 euro 295.000 Abitazione + Balcone + Terrazzo
- App. n.3° Mq 53 Abitazione + Balcone + Terrazzo VENDUTO
- App. n.4° Mq 56 Abitazione + Balcone + Terrazzo VENDUTO

PIANO TERRA – SEMINTERRATO:

- App. n.5° Mq 50 euro 237.000 Abitazione + Patio + Posto Auto
- App. n.6° Mq 47 euro 225.000 Abitazione + Patio + Posto Auto VENDUTO
- App. n.7° Mq 46 euro 220.000 Abitazione + Patio +Posto Auto - App. n.8° Mq euro 46 Abitazione + Patio + Posto Auto VENDUTO

Caratteristiche

Piano 1
Ascensore No
Stato Nuovo / In costruzione
Riscaldamento Autonomo, a pavimento, alimentato a pompa di calore

Servizi e accessori

Armadio a muro Cancello elettrico Esposizione doppia Fibra ottica Impianto di allarme Impianto tv centralizzato Infissi esterni in vetro / PVC Porta blindata VideoCitofono

Posizione

Zona: Molise - Cuoco (Porta Vittoria, Lodi)

Referente

Facchinetti Immobiliare

Storico

Pubblicato 01 Mar 2026
Aggiornato 21 Apr 2026
Sul mercato 51 giorni
ID Annuncio 127058989

Recensioni

Vedi tutte
R

Rocco Pugliese

5.0

Ricordo ancora quando ho trovato l’appartamento perfetto per i miei figli, era un momento di grande soddisfazione. Durante tutto il percorso, sono stato seguito con attenzione e professionalità, appre...

F

Federico Porcu

4.7

Dopo tanti anni di affitto, cercare casa con questa agenzia è stato come trovare finalmente il giusto vestito: mi sono sentito ascoltato e preso sul serio. La loro trasparenza e capacità di capirmi so...

G

Giovanni Trombetta

4.3

Grazie mille per l'attenzione e la professionalità dimostrata, che mi hanno aiutato a trovare l'investimento immobiliare adatto alle mie esigenze. Sono molto stato soddisfatto del supporto ricevuto e...

P

Pietro Pisano

4.3

Grazie di cuore per l’ottimo supporto! Sono rimasto davvero colpito dalla loro conoscenza approfondita delle normative e dalla totale trasparenza durante tutto il processo di vendita del mio locale co...