Vendita Villa Luxury

Villa

Via della Castella, 22, Cremona, Cremona

Prezzo
143
mq
4
Locali
3
Camere
2
Bagni

Recensisci questo Immobile

Devi essere registrato per lasciare una recensione.

Accedi

Nessuna recensione ancora. Sii il primo!

Descrizione

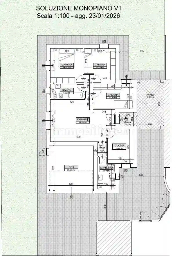
In bella zona residenziale del quartiere Boschetto, proponiamo, in costruzione, villa monopiano singola, libera quattro lati, così internamente distribuita: ingresso nel soggiorno di 30 mq., cucina abitabile, doppi servizi, tre camere, garage doppio e giardino di oltre 300 mq. Dotata di impiantistica di ultima generazione ad alto risparmio energetico, riscaldamento in pompa di calore a pavimento con regolazione separata per ogni ambiente, impianto fotovoltaico, serramenti esterni con doppi vetri a bassa dispersione, predisposizione per il raffrescamento, tapparelle elettriche e portoncino ingresso di sicurezza., vastissima la scelta di pavimenti e rivestimenti. La distribuzione interna degli spazi è ancora personalizzabile. Chiamaci e/o scrivici per maggiori informazioni!!!
La nostra agenzia opera sul territorio cremonese da oltre 25 anni con professionalità e serietà, segue compravendite ed affittanze di ogni tipologia di immobile, con particolare attenzione all'espletamento di ogni pratica burocratica. Manteniamo il massimo aggiornamento riguardo tutte le novità fiscali/legislative in materia. Offriamo serietà e professionalità nell'assistenza alle compravendite immobiliari di ogni tipo, gestione locazioni residenziali e commerciali. La nostra missione è quella di dare una copertura a 360° al cliente, seguendolo fin dai primi contatti sino al passaggio di proprietà. Mettiamo a disposizione dell'acquirente la nostra ventennale esperienza consigliandolo sulla eventuale parziale o totale ristrutturazione dell'immobile, collaborando con diversi artigiani locali. Le illustrazioni e le descrizioni presenti in questo annuncio possono contenere degli errori e/o omissioni e non hanno in nessun modo valore contrattuale.

Caratteristiche

Piano T
Ascensore No
Stato Nuovo / In costruzione
Riscaldamento Autonomo, a pavimento, alimentato a pompa di calore

Servizi e accessori

Caminetto Cancello elettrico Esposizione esterna Fibra ottica Impianto di allarme Impianto tv singolo Infissi esterni in doppio vetro / legno Porta blindata VideoCitofono

Posizione

Zona: Boschetto (Migliaro, Boschetto)

Referente

Abitat Immobiliare

Storico

Pubblicato 27 Feb 2026
Aggiornato 21 May 2026
Sul mercato 84 giorni
ID Annuncio 127072377

Recensioni

Vedi tutte
G

Grazia Ferri

4.3

Grazie di cuore per l’aiuto prezioso, mi sono sentita davvero seguita e rassicurata durante tutto il percorso. Sono stata molto soddisfatta del supporto nella gestione del mutuo e dell’accompagnamento...