Vendita Appartamento

Appartamento

Via Felice Cascione, Diano Marina, Imperia

Prezzo
57
mq
3
Locali
2
Camere
2
Bagni

Recensisci questo Immobile

Devi essere registrato per lasciare una recensione.

Accedi

Nessuna recensione ancora. Sii il primo!

Descrizione

Diano Marina(IM)
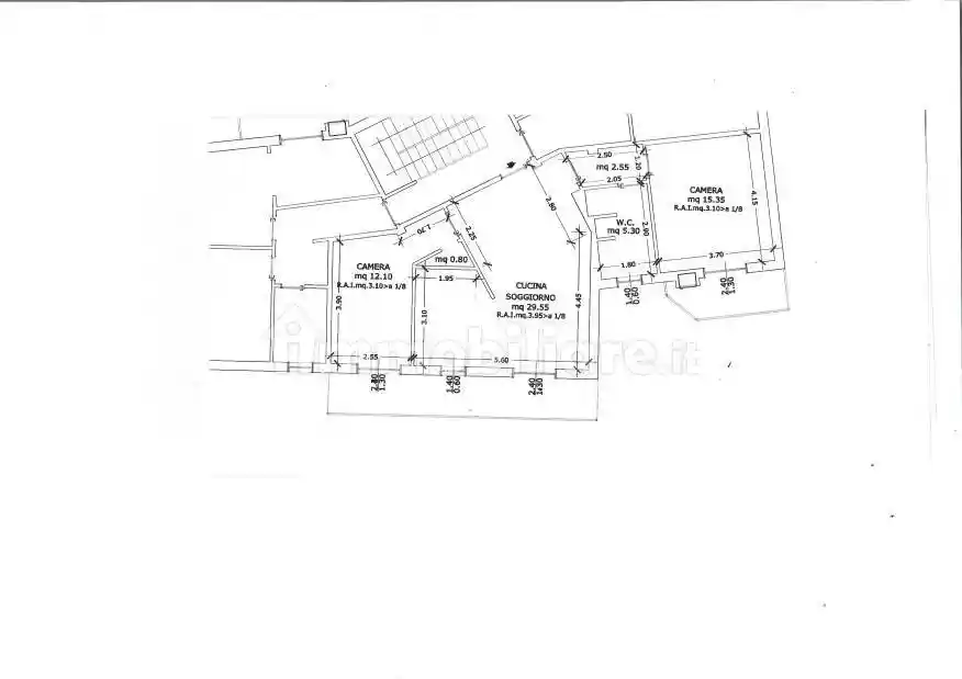
A 30 mt dal mare e a 500 dalla zona pedonale del paese, proponiamo in vendita appartamento così composto: ingresso su soggiorno con parete cottura,
2 camere da letto matrimoniali di cui una con bagno di servizio interno con finestra, bagno padronale (anch'esso con finestra) e ampio balcone angolare. L' appartamento è stato ristrutturato nel 2006: sono stati cambiati i pavimenti e sono stati rifatti i bagni. Gli infissi sono in PVC con doppi vetri. Le spese condominiali ammontano a circa € 50 al mese. ATTO A PARTIRE DAL 15/09/2026.
Per ulteriori informazioni contattare i seguenti recapiti telefonici : Tel 0183/494581 Cell. Serena 333/2269257, Maurizio 335/7217292.
Potete anche inviarci una email all' indirizzo info@immobiliarefuturadiano.it.
L' Agenzia è ubicata in Corso Roma n 43 nel cuore di DIANO MARINA, paese che gode di una particolare posizione, incastonato tra gli ulivi, la macchia mediterranea e la spiaggia. A pieno titolo la cittadina è considerata tra i luoghi più tranquilli ed affascinanti della Riviera di Ponente.
Lo studio FUTURA IMMOBILIARE è a disposizione per la vendita di qualsiasi tipologia di immobili presenti nel Golfo Dianese e zone limitrofe.
Offriamo ottime occasioni di sicuro investimento per chi apprezza una casa al mare in un territorio conservato integro dal clima sempre mite e dall'aria pulita.
Vi aspettiamo con numerose ed interessanti offerte mettendoci a disposizione con la massima professionalità.
Serietà, impegno e trasparenza sono il nostro biglietto da visita.
Vi aspettiamo numerosi sicuri di soddisfare le vostre esigenze.
I NOSTRI SERVIZI
• Valutazione professionale e gratuita dei vostri immobili
• Compravendita immobiliare
• Pubblicità su tutti i portali internet, sulle nostre vetrine e sui nostri volantini personalizzati
• Preventivi completi per ristrutturazioni e migliorie dei vostri immobili
• Preventivi notarili
• Attestazioni di prestazione energetica
• Pratiche edilizie, urbanistiche e catastali

Caratteristiche

Piano 1
Ascensore Si
Stato Buono / Abitabile

Servizi e accessori

Esposizione esterna Impianto tv centralizzato Infissi esterni in doppio vetro / PVC Porta blindata

Posizione

Referente

Futura Immobiliare

Storico

Pubblicato 16 Mar 2026
Aggiornato 25 May 2026
Sul mercato 70 giorni
ID Annuncio 127532102

Recensioni

Vedi tutte
F

Francesca Ciriello

5.0

Ho scelto questa agenzia perché mi ha trasportato con grande professionalità e simpatia in un mondo che conoscono bene, sempre aggiornati sulle normative e affidabili. Dopo la pensione, volevo trovare...

G

Giada Maffei

4.7

Grazie di cuore per avermi aiutata a trovare l'appartamento perfetto per i miei figli a Diano Marina! Stata davvero attenta a ogni dettaglio e ha dimostrato una conoscenza approfondita del mercato loc...