Vendita Appartamento

Appartamento

Via Vittorio Cini, Ferrara, Ferrara

Prezzo
72
mq
2
Locali
1
Camere
1
Bagni

Recensisci questo Immobile

Devi essere registrato per lasciare una recensione.

Accedi

Nessuna recensione ancora. Sii il primo!

Descrizione

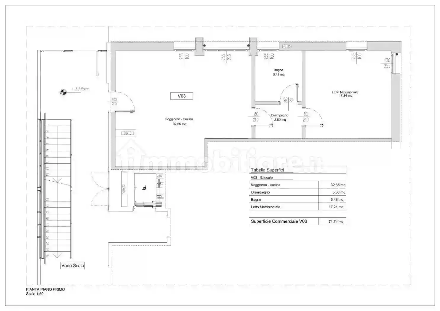
Occasione unica per convenienza e tipologia, in vista di Via Comacchio, in posizione ottimamente servita e collegata, ma appartata rispetto al traffico, ugualmente comoda al raggiungimento sia del centro città che dell'ospedale, in contesto condominiale di prestigio ed esteticamente distintivo, attualmente in fase di realizzazione, liberi eleganti bilocali, siti ai piani primo, secondo e terzo, serviti da ascensore, luminosi e con vista, di ampia metratura (oltre 70 mq. c.a. commerciali), dotati di ampia zona soggiorno cucina, servizi e camera da letto matrimoniale. Previste dotazioni e rifiniture di livello superiore, da scegliere tra le campionature di aziende leader presso gli showroom affiliati, con la possibilità della massima personalizzazione. Soluzione ideale per un investimento immobiliare, che preveda una facile e vantaggiosa resa da locazione indirizzata a soddisfare le esigenze di personale e professionisti in transito. Prevista l'assegnazione di una classe energetica vantaggiosa. Possibilità di posto auto esclusivo (eventualmente coperto). Pagamento a stato d'avanzamento dei lavori. Euro 195.000,00.

Caratteristiche

Piano 1
Ascensore Si
Stato Nuovo / In costruzione
Riscaldamento Autonomo, a pavimento, alimentato a pompa di calore

Servizi e accessori

Esposizione esterna Impianto tv singolo Infissi esterni in doppio vetro / PVC Porta blindata

Posizione

Zona: Comacchio (Fuori Mura Est)

Referente

Greentradingroup srl

Storico

Pubblicato 20 Apr 2026
Aggiornato 27 Apr 2026
Sul mercato 7 giorni
ID Annuncio 128142648