Vendita Appartamento

Appartamento

Via Verona, 8, Bolzano, Bolzano

Prezzo
54
mq
2
Locali
1
Camere
1
Bagni

Recensisci questo Immobile

Devi essere registrato per lasciare una recensione.

Accedi

Nessuna recensione ancora. Sii il primo!

Descrizione

Bilocale con Giardino Privato in “CasaClima B” – Via Verona, San Quirino (BZ)
In vendita in esclusiva – Immobiliare Italia

Nel cuore di San Quirino, una delle zone più amate di Bolzano, proponiamo un bilocale con giardino che unisce comfort moderno, tranquillità e un’elevata qualità di vita. L’appartamento si trova in posizione interna e silenziosa, a pochi passi dal Lido, dall’Eurac Research e dalle passeggiate del Lungo Talvera. Il centro è raggiungibile a piedi in 10 minuti, rendendo questa soluzione perfetta per chi desidera vivere in un contesto comodo e ben collegato.

Un giardino privato che diventa un’estensione della casa

Il vero protagonista di questo immobile è il giardino privato di circa 50 mq, uno spazio raro e prezioso in città. Un angolo verde da vivere ogni giorno: colazioni all’aperto in primavera, cene estive con amici, un’oasi di relax dopo il lavoro, uno spazio sicuro per bambini o animali.

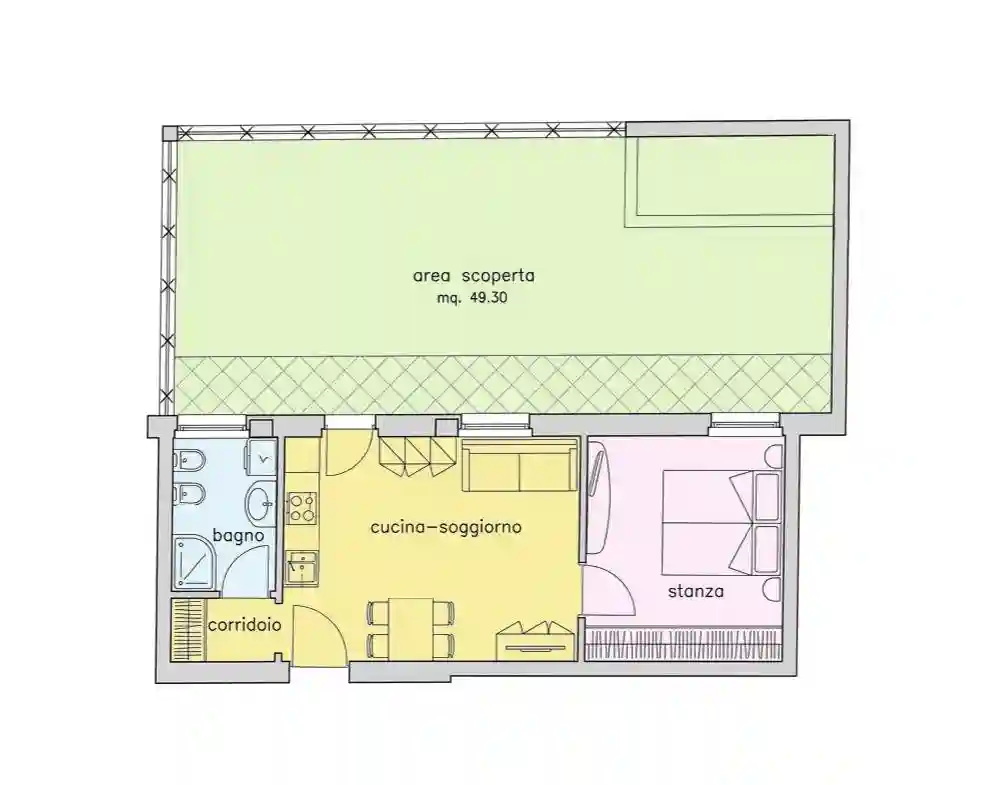
Distribuzione degli spazi

La zona giorno di circa 20 mq, luminosa e accogliente, si apre sul giardino, creando una continuità tra interno ed esterno che amplifica la percezione dello spazio e regala una sensazione di benessere immediato.

La zona notte, ben separata, comprende:

ampia camera matrimoniale, silenziosa e riservata
bagno finestrato con doccia
comodo ripostiglio con armadiatura su misura

Ambienti moderni, funzionali e piacevoli da vivere ogni giorno.

CasaClima B: comfort, risparmio e benessere

La certificazione CasaClima B garantisce:

consumi energetici ridotti, con un risparmio reale sulle spese di gestione
temperature interne più stabili in ogni stagione
aria più salubre e comfort abitativo superiore
isolamento acustico che amplifica la sensazione di tranquillità

Completano il livello abitativo il riscaldamento a pavimento, per una distribuzione del calore uniforme e costante in ogni ambiente, e l’aspirapolvere centralizzata, una soluzione moderna e funzionale che rende la gestione della casa più semplice e pratica.

Una tecnologia abitativa pensata per offrire non solo efficienza energetica, ma anche un reale miglioramento della qualità della vita quotidiana.

Caratteristiche principali

CasaClima B
Zona interna e silenziosa
Giardino privato di circa 50 mq, spazio esterno raro per la zona
Zona giorno di 20 mq con affaccio diretto sul verde
Bagno finestrato
Ripostiglio con armadiatura
Ottima distribuzione degli spazi

Contesto tranquillo e ben abitato
Posizione strategica e servitissima
Ideale per single, coppie o come investimento

Extra disponibili

Possibilità di acquistare gli arredi
Possibilità di acquisto Garage di circa 18 mq (ordinato, pulito e molto ampio, adatto anche ad auto di grandi dimensioni)
Cantina compresa

Perché sceglierlo

Perché offre una qualità di vita superiore: un giardino privato, un ambiente silenzioso, consumi ridotti e un comfort abitativo che solo una CasaClima può garantire. Una soluzione perfetta per chi cerca un’abitazione moderna, efficiente e da vivere fin da subito, in uno dei quartieri più apprezzati di Bolzano.
???? Via Verona 8 – Bolzano, Zona San Quirino

Caratteristiche

Piano T
Ascensore Si
Stato Ottimo / Ristrutturato
Riscaldamento Centralizzato, a pavimento

Servizi e accessori

Esposizione interna Infissi esterni in triplo vetro / PVC Porta blindata VideoCitofono

Posizione

Zona: Gries - San Quirino (Gries San Quirino, San Maurizio)

Referente

Immobiliare Italia srl

Storico

Pubblicato 18 Apr 2026
Aggiornato 27 Apr 2026
Sul mercato 11 giorni
ID Annuncio 128372918

Recensioni

Vedi tutte
E

Enzo Altieri

4.7

Lavorare con questa agenzia è stato un vero piacere, mi sono sentito subito supportato e preso in cura. La loro disponibilità e tempestività nelle risposte mi hanno fatto sentire molto rassicurato e v...

E

Enrico Strangio

4.3

Ho trovato l'agenzia molto professionale e attenta ai dettagli durante tutto il percorso di investimento. Mi sono sentito seguito con cura e disponibilità, anche dopo aver concluso l’acquisto. È stata...