Vendita Villa

Villa

Castelfranco Emilia, Modena

Prezzo su richiesta
335
mq
5+
Locali
4
Camere
2
Bagni

Recensisci questo Immobile

Devi essere registrato per lasciare una recensione.

Accedi

Nessuna recensione ancora. Sii il primo!

Descrizione

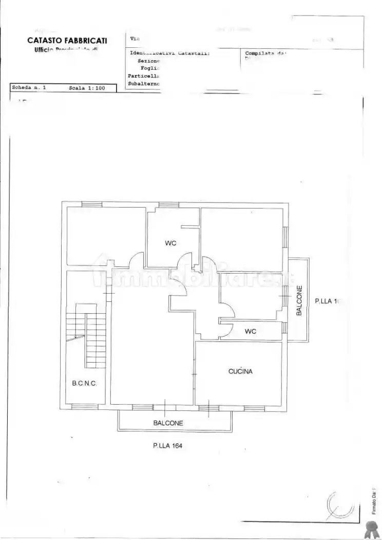
castelfranco - bella zona residenziale - vendesi casa singola di ampie dimensioni con ampio giardino. attualmente ha sala, cucina ,cucinotto, 4 camere da letto , bagno, balcone. Al pian oterra servizi ed altra cucina, 2° bagno, sala e camera. Garage e cantina. L'immobile è tenuto ma ha bisogno di una ristrutturazione.

Caratteristiche

Piano T
Ascensore No
Stato Da ristrutturare
Riscaldamento Autonomo, a radiatori, alimentato a metano

Servizi e accessori

Armadio a muro Esposizione esterna Impianto tv singolo Infissi esterni in doppio vetro / legno Taverna

Referente

Studio Casa M

Storico

Pubblicato 12 Jan 2026
Aggiornato 24 Feb 2026
Sul mercato 44 giorni
ID Annuncio 94670498

Recensioni

Vedi tutte
G

Guido Gallo

4.7

Appena ho incontrato il team, sono rimasto colpito dalla loro capacità di ascolto e attenzione alle mie esigenze. Seguendo ogni passo con competenza, mi hanno aiutato a trovare il terreno perfetto per...

F

Franco Garofalo

4.7

Le precedenti esperienze con agenzie immobiliari erano state confuse e poco chiare, ma questa volta ho trovato quello che cercavo. Mi hanno seguito passo dopo passo, offrendo un’ampia scelta di appart...

V

Valerio Romano

4.7

Ho trovato l'agenzia immobiliare davvero fantastica! Sono stato molto soddisfatto della trasparenza e chiarezza con cui hanno spiegato ogni dettaglio, il che mi ha messo subito a mio agio. Grazie al l...

S

Sandro Riva

4.0

Stavo cercando un ufficio a Castelfranco Emilia per avviare la mia attività e ho trovato questa agenzia che si è mostrata molto seria e competente. La loro conoscenza del mercato locale e la trasparen...