Bilocale corso Camillo Benso di Cavour 2, Centro Storico, Pavia
Vendita
Vendita Appartamento

Bilocale corso Camillo Benso di Cavour 2, Centro Storico, Pavia

Corso Camillo Benso di Cavour, Pavia, Pavia

295.000 €
74
mq
2
Locali
1
Camere
1
Bagni

Recensisci questo Immobile

Devi essere registrato per lasciare una recensione.

Accedi

Nessuna recensione ancora. Sii il primo!

Descrizione

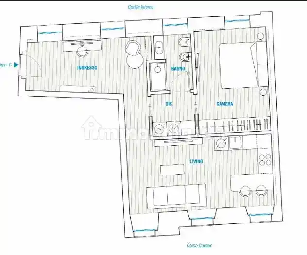
Un'opportunità unica in un contesto elegante e raffinato. Proponiamo un bilocale al primo piano alto, servito da ascensore, che offre finiture di altissimo livello e una luminosità senza pari.

L'appartamento si apre su un ampio ingresso che accoglie con luce naturale. La zona giorno, con cucina a vista, è altrettanto luminosa e gode di un affaccio privilegiato su Corso Cavour. (Si segnala che l'arredo della cucina è incluso nella compravendita.)

Completano la proprietà un bellissimo bagno, un disimpegno con angolo lavanderia, e una spaziosa camera matrimoniale. L'immobile è pronto per essere abitato, senza necessità di lavori, e subito disponibile.

La Ristrutturazione: un impegno per la qualità e il design : la recente e completa ristrutturazione ha interessato ogni aspetto dell'immobile, garantendo standard elevati di qualità e un design contemporaneo, realizzando interventi profondi su:
IMPIANTI : Tutti gli impianti (elettrico, idraulico, di riscaldamento/raffreddamento) sono nuovi ed a norma, garantendo massima efficienza energetica e sicurezza. Questo si traduce in bollette più leggere e in un comfort abitativo superiore.
FINITURE : Sono stati selezionati materiali di pregio e di tendenza, contribuendo ogni elemento a creare un'atmosfera accogliente e raffinata.
DISTRIBUZIONE DEGLI SPAZI : La disposizione interna è stata ottimizzata per massimizzare la luminosità e la vivibilità di ogni ambiente, ottimizzando la funzionalità di ogni reparto della casa.
ISOLAMENTO termico/acustico : Particolare attenzione è stata data all'isolamento, con l'installazione di infissi triplo vetro con struttura in legno di ultima generazione garantendo un comfort acustico e termico eccellente in ogni stagione.

Gli interni sono luminosi e funzionali : entrando nell'immobile si percepisce immediatamente l'atmosfera luminosa e accogliente.
ZONA LIVING : l'ampio soggiorno open space si fonde armoniosamente con la cucina a vista, creando un ambiente ideale per la convivialità e il relax. Le grandi finestre garantiscono una luce naturale diretta, in armonia con i volumi dell'ambiente.
CUCINA : moderna e funzionale, con linee di design di ultima concezione, predisposta per accogliere elettrodomestici di ultima generazione e offre ampi spazi di lavoro.
ZONA NOTTE : la camera da letto è spaziosa e ben illuminata, offre un rifugio di tranquillità.
BAGNO : elegante e moderno, dotato di sanitari di design e di doccia confortevole.

Caratteristiche

Piano 1°, con ascensore
Ascensore Si
Stato Ottimo / Ristrutturato
Riscaldamento Autonomo

Servizi e accessori

Fibra ottica Videocitofono Porta blindata Armadio a muro Impianto tv centralizzato Parzialmente arredato Infissi esterni in triplo vetro / legno Esposizione doppia

Posizione

Zona: Centro Storico (Centro)

Referente

Maurizio Mannarino

Storico

Pubblicato 29 Dec 2025
Aggiornato 15 Feb 2026
Sul mercato 53 giorni
ID Annuncio 125114701

Recensioni

Vedi tutte
M

Margherita Grande

5.0

Grazie di cuore per avermi aiutata in questa fase così importante! Sono stata davvero colpita dalla disponibilità e dalla professionalità dimostrata, che mi hanno fatta sentire sempre supportata e ras...

D

Debora Colella

4.3

Quello che mi ha colpito di più è stata la loro attenzione ai dettagli e la conoscenza approfondita delle normative. Mi sono trovata subito a mio agio grazie alla loro puntualità e alla capacità di se...