Vendita Appartamento

Appartamento

Viale Tirreno, 190, Roma, Roma

Prezzo
75
mq
2
Locali
1
Camere
1
Bagni

Recensisci questo Immobile

Devi essere registrato per lasciare una recensione.

Accedi

Nessuna recensione ancora. Sii il primo!

Descrizione

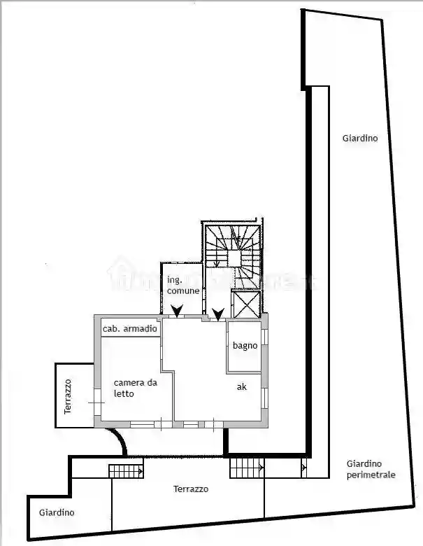
In un contesto residenziale elegante e riservato, a pochi minuti a piedi dalla fermata della metro B1 Conca d’Oro, proponiamo in vendita un interessante bilocale con ampio giardino privato perimetrale, situato al secondo piano di un signorile stabile in cortina servito da ascensore, ben curato e inserito in un ambiente particolarmente tranquillo e verdeggiante tra i villini del quartiere di Città Giardino.

La posizione rappresenta uno dei punti di forza della proprietà: l’immobile si trova infatti in una zona ricca di servizi e perfettamente collegata, con supermercati, negozi di quartiere, scuole, farmacie e aree verdi facilmente raggiungibili a piedi, ma allo stesso tempo gode di un contesto silenzioso, lontano dal traffico e circondato dal verde, ideale per chi cerca comfort e qualità della vita senza rinunciare alla comodità della città.
Elemento davvero distintivo della casa è il giardino privato che circonda l’appartamento, uno spazio esterno raro per la tipologia e per la zona. Il giardino si sviluppa lungo il perimetro dell’abitazione ed è in parte terrazzato e in parte a verde, offrendo così una grande versatilità di utilizzo. La parte pavimentata è perfetta per creare una zona pranzo all’aperto, un salottino estivo o uno spazio conviviale, mentre l’area verde può essere valorizzata con piante ornamentali, un piccolo orto urbano o una zona relax immersa nella tranquillità. Gli affacci sul verde e la buona esposizione rendono questo spazio particolarmente luminoso e vivibile per gran parte dell’anno, trasformandolo in una vera estensione degli ambienti interni.

L’appartamento, offre interessanti possibilità di reinterpretazione degli spazi a proprio piacimento. La distribuzione interna si presta infatti a diverse soluzioni progettuali:
-valorizzare la zona living con affaccio diretto sul giardino, creando una continuità tra interno ed esterno;
-realizzare una cucina a vista moderna e luminosa;
-ottimizzare la zona notte per ottenere maggiore comfort e spazi contenitivi; Oppure ripensare l’organizzazione degli ambienti con un progetto contemporaneo che esalti la luminosità e il rapporto con il giardino.
Un ulteriore elemento di particolarità è rappresentato dalla presenza di due ingressi: uno principale dal vano scala condominiale e un secondo accesso interno, condiviso con un’altra unità immobiliare, che può offrire ulteriore flessibilità nell’utilizzo dell’immobile. Completa la proprietà una comoda cantina di pertinenza.

Grazie al contesto signorile, alla vicinanza alla metropolitana, alla tranquillità della zona e soprattutto alla presenza di un importante spazio esterno privato, questa soluzione rappresenta un’opportunità ideale sia per chi è alla ricerca di una casa accogliente e ben collegata, sia per chi desidera effettuare un investimento immobiliare in una zona molto richiesta.
Una proprietà che unisce comodità urbana, riservatezza e il privilegio sempre più raro di vivere la casa anche all’aperto, immersi nel verde.

LE PRESENTI INFORMAZIO SONO PURAMENTE INDICATIVE E NON COSTITUISCONO ELEMENTO CONTRATTUALE.
VALUTAZIONI IMMOBILIARI GRATUITE SU ROMA E PROVINCIA - DIMORA ROMA S.R.L. - VIA UGO OJETTI 38 - 00137 RM.

Caratteristiche

Piano 2
Ascensore Si
Stato Buono / Abitabile
Riscaldamento Autonomo, a radiatori, alimentato a gas

Servizi e accessori

Esposizione doppia Fibra ottica Impianto tv con parabola satellitare Infissi esterni in vetro / legno Porta blindata

Posizione

Zona: Città Giardino (Talenti, Monte Sacro, Nuovo Salario)

Referente

Dimora Roma srl

Storico

Pubblicato 12 Mar 2026
Aggiornato 21 May 2026
Sul mercato 70 giorni
ID Annuncio 127378655

Recensioni

Vedi tutte
F

Flavia Farina

4.7

Ricordo ancora quel momento in cui ho visto la casa finalmente venduta, mi sono sentita sollevata e felice come non mai. Sono stata seguita passo dopo passo con tanta cura dei dettagli e grande profes...

E

Erica Coppola

4.0

Quello che mi ha spinto a scegliere questa agenzia è stata la loro sincerità e la cura con cui seguono ogni dettaglio. Sono stata aiutata con grande gentilezza e professionalità nel trovare l’ufficio...