Vendita Casa indipendente

Casa indipendente

Via Cesare Battisti, 82018 San Nazzaro Benevento, San Nazzaro, Benevento

Prezzo
Buon Prezzo: 15% sotto la media
149
mq
3
Locali
2
Camere
2
Bagni

Recensisci questo Immobile

Devi essere registrato per lasciare una recensione.

Accedi

Nessuna recensione ancora. Sii il primo!

Descrizione

Scopri questa interessante opportunità all'asta nel cuore di San Nazzaro: una casa indipendente che unisce spazi generosi, privacy e il potenziale di essere valorizzata secondo le proprie esigenze. Una soluzione ideale per chi cerca un immobile da personalizzare o un investimento immobiliare in un contesto residenziale tranquillo.

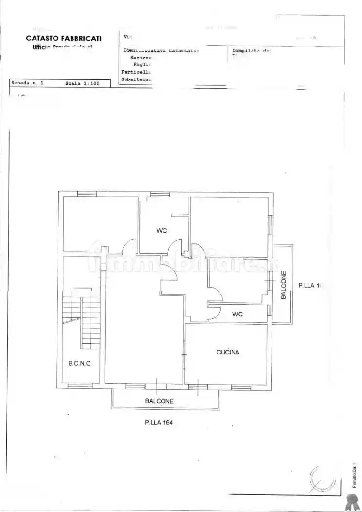
L’immobile all'asta è costituito da un fabbricato unifamiliare sviluppato su due livelli. Il piano rialzato ospita l’abitazione principale, mentre il piano seminterrato comprende un garage e ulteriori locali attualmente allo stato grezzo, offrendo la possibilità di ampliare gli spazi o adattarli a diverse funzioni. La superficie commerciale complessiva è di circa 148,8 mq.

L’abitazione presenta una distribuzione tipica delle case indipendenti, con ambienti abitativi ben organizzati e finiture di livello ordinario. I pavimenti sono in parte in maiolica, monocottura e parquet, mentre gli interni sono rifiniti con intonaci e tinteggiature tradizionali. Gli impianti presenti includono impianto idrico, elettrico e di riscaldamento con termocamino e radiatori, oltre a un sistema di climatizzazione con split in uno degli ambienti.

Al piano seminterrato si trova un garage di circa 18 mq e ulteriori locali di circa 57 mq allo stato grezzo, che rappresentano un interessante margine di sviluppo. Questi spazi possono essere trasformati in locali accessori, deposito, taverna o area hobby, aumentando il valore e la funzionalità complessiva della proprietà.

L’immobile si trova in una zona semicentrale di San Nazzaro, lungo Via Cesare Battisti, in un contesto residenziale ben collegato al resto del paese e ai comuni limitrofi della provincia di Benevento. L’area è caratterizzata da buona accessibilità, presenza di parcheggi e vicinanza ai principali servizi e collegamenti con autobus extraurbani.

Dettagli principali:
• Tipologia: casa indipendente / fabbricato unifamiliare
• Superficie: circa 148,8 mq commerciali
• Piano: seminterrato + piano rialzato
• Località: San Nazzaro (BN), Via Cesare Battisti
• Stato: buono stato manutentivo con locali seminterrati in parte allo stato grezzo
• Pertinenze: garage e locali accessori in corso di costruzione
• Classe energetica: non disponibile (APE mancante)

Vuoi ricevere tutti i dettagli della procedura o valutare questa opportunità di acquisto all'asta? Contattaci per maggiori informazioni e per essere guidato passo dopo passo nella partecipazione all’asta giudiziaria.

CHI SIAMO
Immobiliallasta.it aiuta le persone a comprare casa all'asta e migliorare la qualità della loro vita senza correre rischi, grazie ad una piattaforma specializzata in aste immobiliari sviluppata intorno alle vere esigenze di chi cerca casa all'asta e ad un team di 30 professionisti esperti dedicato, che ti guida passo passo in un acquisto sicuro e certificato da una tripla garanzia sull'immobile e sul servizio.
A differenza delle agenzie troverai:
+ Varietà: gestiamo migliaia di immobili ogni mese
+ Tranquillità: controlli certificati che ti tutelano nell'acquisto
Alcuni risultati oggettivi nell'ultimo anno e mezzo:
- 8.600 immobili gestiti
- +500 clienti portati all'asta
- +200 case aggiudicate, per un valore totale di 15 milioni
Contattaci subito per parlare con uno dei nostri consulenti che ti aiuterà a trovare la tua casa all'asta senza correre rischi.

Caratteristiche

Ascensore No
Stato Buono / Abitabile

Posizione

Referente

Immobili All'Asta

Storico

Pubblicato 14 Mar 2026
Aggiornato 05 Apr 2026
Sul mercato 23 giorni
ID Annuncio 127480432

Recensioni

Vedi tutte
S

Serena Leone

4.7

La cosa che mi ha colpito di più è stata la rapidità con cui hanno trovato la casa perfetta per me. Avevo bisogno di cambiare in fretta e senza stress, e sono stata davvero seguita passo dopo passo, c...

P

Paola Piras

5.0

Se state cercando un’agenzia immobiliare affidabile, vi consiglio di rivolgervi a questa. Mi sono trovata davvero bene, sono stata seguita passo dopo passo e hanno sempre risposto con tempestività all...

T

Tania Bruno

4.7

Ho trovato una casa perfetta in una zona più tranquilla di Milano grazie a questa agenzia. Sono stata seguita con molta attenzione e professionalità, e mi sono sentita sempre ascoltata e rispettata ne...

S

Salvatore Pandolfi

5.0

Durante il processo di acquisto della mia prima casa, mi sono sentito molto sereno e ben guidato, grazie all’onestà e alla professionalità dell’agenzia. Ho trovato uno staff sempre disponibile a segui...

S

Sandra Lombardi

4.7

Ho trovato il bilocale perfetto grazie a un’agenzia immobiliare molto professionale. Sono stata seguita con cura e attenzione ai miei bisogni, il tutto in modo rapido e senza stress. Mi sono sentita d...