Asta Appartamento Nuovo

Appartamento

Via Gaetano Donizetti, Lucera, Foggia

Prezzo
126
mq
2
Locali
2
Camere

Recensisci questo Immobile

Devi essere registrato per lasciare una recensione.

Accedi

Nessuna recensione ancora. Sii il primo!

Descrizione

Riferimento: 4502839

Via Gaetano Donizetti n. 9, 71036 Lucera Foggia

Lotto: 1

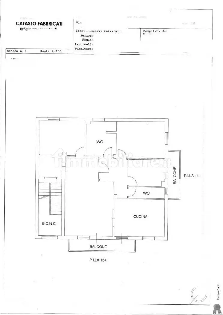
Piena proprietà di fabbricato urbano sito in Lucera (Fg) alla via Gaetano Donizetti n. 9 e censito in catasto fabbricati del Comune di Lucera al foglio 29 particella n. 3037 sub 1, 3 e 7. Il fabbricato è formato da un piano interrato di mq. 126 e categoria catastale C/2 (sub 1), da un piano terra di mq. 126 e categoria catastale C/1 (sub 7) e da un primo piano di 6,5 vani e categoria catastale A/3 (sub 3).

Data di vendita: 27/02/2026 17:00

Offerta minima: € 47.450,00

Valore di stima .€ 174.000,00

Studio di Fattibilità Pre-Asta

Offriamo consulenza legale completa per l'acquisto tramite asta giudiziaria.
I nostri servizi includono:

Ricerca dell'immobile secondo le esigenze del cliente
Studio di fattibilità pre-asta in fase di richiesta di visita
Studio di fattibilità del mutuo tramite banche convenzionate
Esame della perizia e documentazione correlata
Verifica legale

Preparazione e deposito delle offerte di partecipazione

Gestione della gara

Consulenza post-aggiudicazione fino all'emissione del decreto di trasferimento o del rogito

Vi invitiamo a fissare una prima consulenza gratuita presso una delle nostre 80 sedi sparse su tutto il territorio per ricevere maggiori informazioni sul processo di partecipazione ad un'asta giudiziaria, tempistiche, costi e modalità di acquisto.

Ulteriore documentazione disponibile verrà messa a disposizione durante la consulenza.

+39 06 4006 1824

Visitate il nostro sito www.asteflorio.com dove potrete trovare più di 20.000 Aste disponibili
NB: Le immagini potrebbero essere solo esempi e non rappresentare gli immobili reali. Le coordinate geografiche, fornite automaticamente da Google, possono contenere inesattezze. Segnalate eventuali errori e rimuoveremo o correggeremo gli annunci non conformi.

L'ESATTEZZA DI TUTTI I DATI PUBBLICATI INOLTRE SARA' CONFERMATA IN SEDE DI CONSULENZA.

Caratteristiche

Piano Piano terra
Stato Buono / Abitabile
Riscaldamento Autonomo

Servizi e accessori

Cucina Impianto tv centralizzato Parzialmente arredato Infissi esterni in vetro / legno Esposizione doppia

Posizione

Referente

Aste Florio

Storico

Pubblicato 01 Jan 2026
Disattivato 31 Mar 2026
Sul mercato 149 giorni
ID Annuncio 125529619

Recensioni

Vedi tutte
D

Diana Geraci

4.3

Ho trovato l'investimento immobiliare perfetto grazie alla loro serietà e alla conoscenza approfondita del mercato locale. Sono stata seguita passo dopo passo, e mi hanno aiutata a fare scelte sicure...

G

Giulia Lanzoni

4.0

Ricordo ancora il momento in cui ho visto il terreno e subito ho capito che era quello giusto. Sono stata subito seguita con pazienza e rapidità, trovando tutte le risposte alle mie domande senza stre...

B

Barbara Laurenti

4.0

Grazie mille per avermi seguita con tanta professionalità e competenza! Mi sono trovata davvero bene, sapevo di poter contare su un’agenzia affidabile e conosciuta bene il mercato locale, e così è sta...